18 Pamphlet Lane, Coomera

Leased

Leased for $700

4

2

2

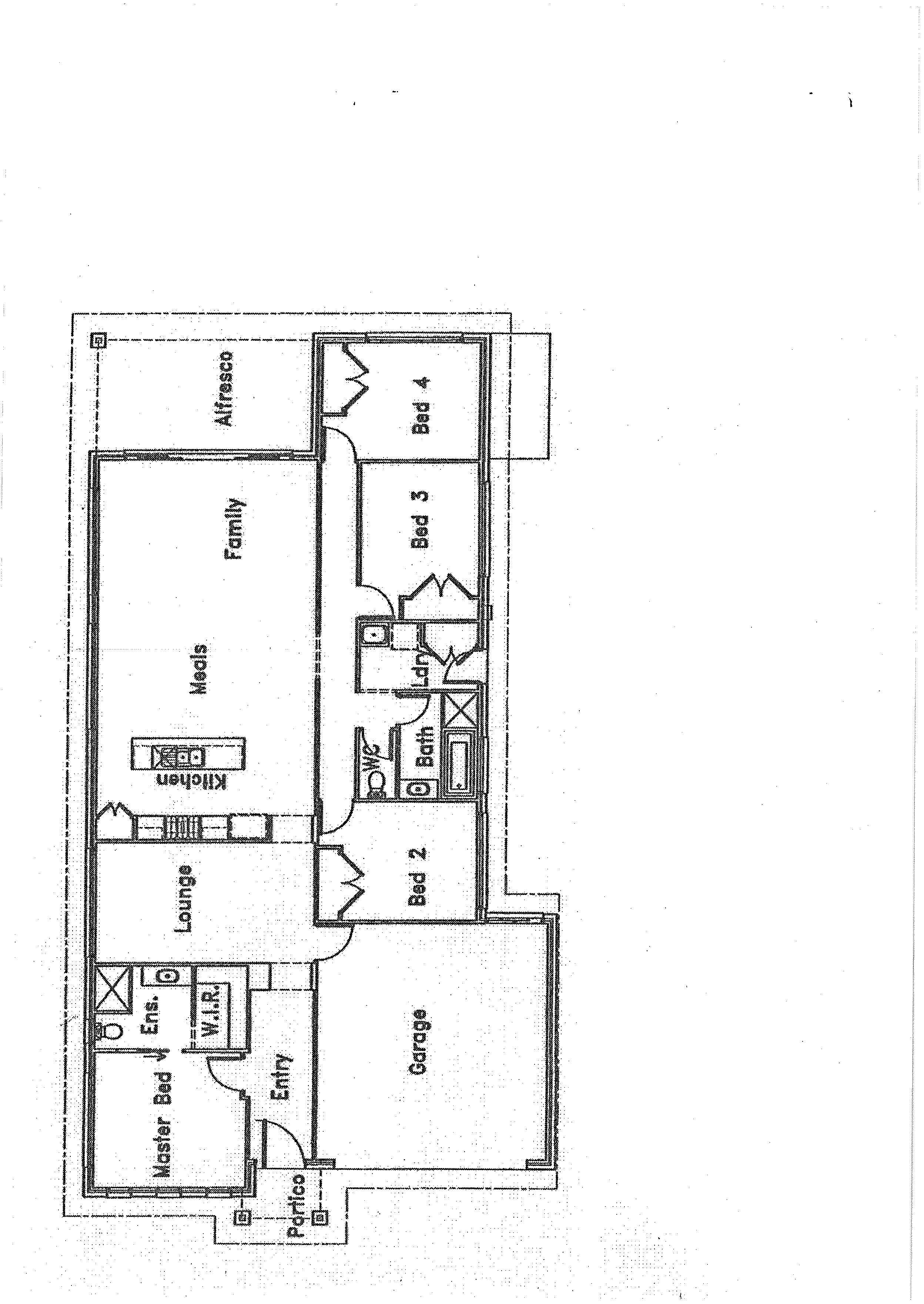
Welcome to a fully Ducted Air-conditioned Home containing:

4 bedrooms with built in robes
Main bedroom with walk in robe
Ensuite beautifully tiled to ceiling - shower, toilet, single vanity

Open plan tiled Family ,Dining and Kitchen

Fresh Light Kitchen:
- Granite benchtops
- Blanco Stainless Steel Freestanding 5 gas burner cooktop and Haier Dishwasher
- Pantry
- Tapped in Fridge space

Seperate carpeted Formal Lounge

Main bathroom - shower, bath, single vanity, separate toilet

Seperate Laundry

Double Remote lock-up Garage with rear roller door
Large tiled undercover Alfresco
Shed
Fair size garden - easily maintained

Pets on Application
Telstra velocity Estate
By-Laws apply!

Being part of the Genesis Estate means you have the full use of the Synergy Rec Club which boasts a beautiful resort style pool, gym, bbq's and function room, just with a swipe of your access card!

Genesis Estate is close to many Private and State, High and Primary schools (i.e Coomera Rivers State Primary, Pimpama Secondary State School), shops, the motorway, Coomera Train Station, GCIT, 45 min from Brisbane and 25 min from Gold Coast beaches!

With the feeling of being "one with nature" yet still close to all amenities - Make this home yours.

Please email registration for the scheduled Open Homes.
Michele - 0438849376
features

FEATURES

Delight in the Genesis Estate!! Features include:

  • Property ID: a8022016-dabf-4a4d-be3e-204792
  • Bedrooms: 4
  • Bathrooms: 2
  • Garage: 2
  • Land Size: 483.00000000 m2 approx.
  • Built In Robes
  • Dishwasher
  • Ducted Cooling
  • Fully Fenced
  • Outdoor Ent
  • Remote Garage

Property Links

Click on a link below to find out more about this listing

  • Floorplan
  • Email a Friend

ENQUIRE NOW

Feel free to get in touch with one of our friendly and professional agents for more information.
We look forward to hearing from you!

Your Details
Your Enquiry
  1. Please describe how we can be of assistance to you.

  2.  

    Would you like to join our mail list?

Submit

Share This Listing